Bungalow Now 118 mit Walmdach

  • Preis ab 311.100€
NEU Hausentwurf
NEU Hausentwurf
Bungalow Now 118 mit Walmdach
  • Preis ab 311.100€

Beschreibung

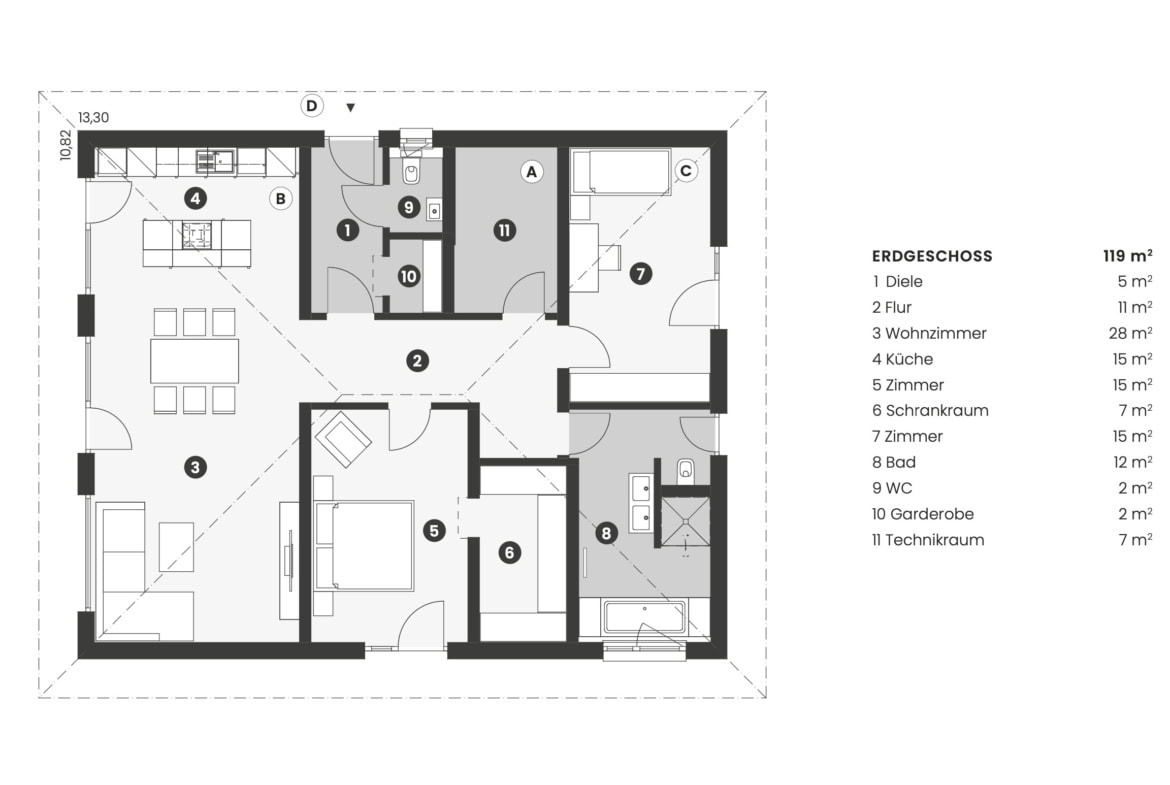
Der moderne Fertighaus Bungalow Now 118 von ELK Haus ist mit einer Wohnfläche von 118 m² ideal für Paare und kleine Familien geeignet und lässt sich problemlos an wechselnde Lebenssituationen anpassen. Der eingeschossige Bungalow verfügt über einen großzügigen Wohn- und Essbereich mit offener Küche samt Kochinsel, der als lichtdurchfluteter, kommunikativer Mittelpunkt des Hauses dient. Ergänzt wird das Raumkonzept durch private Rückzugsorte, zu denen ein Schlafzimmer mit Ankleide und ein zweites Zimmer zählt, sodass insgesamt drei Zimmer zur Verfügung stehen. Die äußere Erscheinung wird von einem klassischen Walmdach und einer modernen Holz Putz Fassade geprägt, die dem Bungalow eine zeitlose elegante Ausstrahlung verleihen. Das ELK Haus ist bewusst barrierefreundlich konzipierbar und lässt sich auch rollstuhlgerecht umsetzen, wodurch Komfort und Zugänglichkeit über alle Lebensphasen gewährleistet sind. Für individuelle Bedürfnisse sind weitere Grundrissvarianten und Dachformen z.B. mit Flachdach verfügbar, sodass sich der Fertighaus Bungalow Now 118 sowohl in Stil als auch in Funktionalität an persönliche Wünsche anpassen lässt.

Das könnte Sie auch interessieren

Details

Aktualisiert am Oktober 17, 2025 um 12:00 pm
  • Haus-ID: HD46652
  • Preis: Preis ab 311.100€
  • Wohnfläche: 118,28 m²
  • Zimmer: 3
  • Haustyp: Bungalow
  • Dachform: Walmdach
  • Bauweise: Fertighaus
  • Etagen: 1
  • Ausbaustufen: Ausbauhaus, Schlüsselfertig
  • Form: Rechteckig
  • Preis: über 300.000 €
  • Fläche: 100 bis 150 m²
  • Frontmaße (m): 13,30
  • Seitenmaße (m): 10,82
  • Fassade: Putz, Holz
  • Verwendung: Einfamilienhaus
  • Stil: Modern

Grundrisse

Kontakt zum Anbieter

Alle Häuser sehen

Anbieter dieses Hauses kontaktieren

Ähnliche Häuser

Vergleiche Einträge

Vergleichen
ELK Haus
  • ELK Haus