Barrierearmer Bungalow myLife 200

  • Preis auf Anfrage
NEU Kundenhaus
NEU Kundenhaus
Barrierearmer Bungalow myLife 200
  • Preis auf Anfrage

Beschreibung

Ein barrierearmer Bungalow macht den Traum vom möglichst langen, selbstbestimmten Wohnen daheim wahr. Die schlichte, weiße Putzfassade und das dunkel eingedeckte Walmdach verleihen dem WeberHaus Bungalow Eleganz und fügen sich dezent in die Nachbarschaft ein.

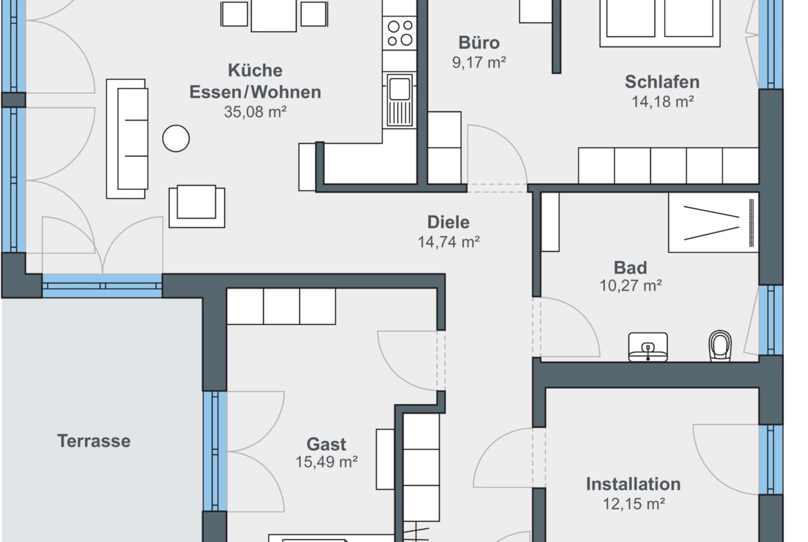
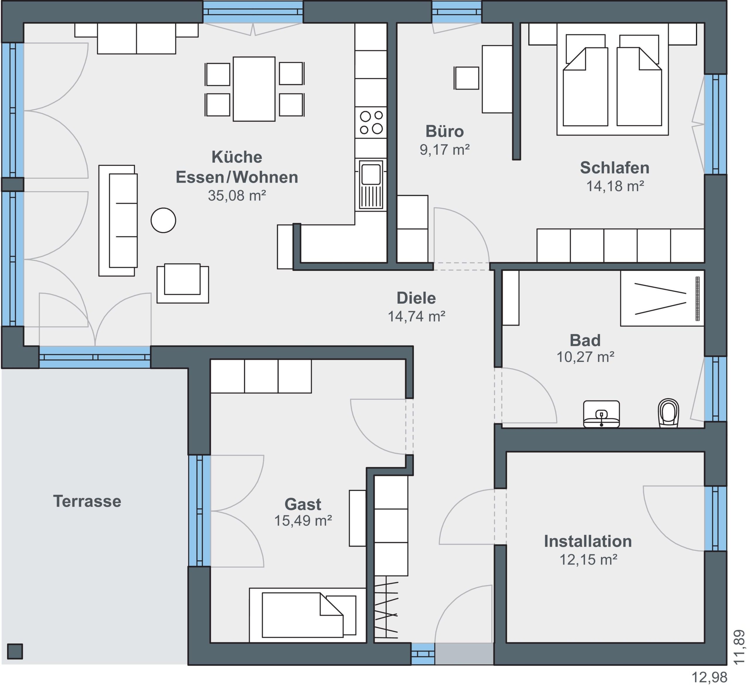
Auf der Gartenseite sorgt eine großzügige Fensterfront für lichtdurchflutete Räume. Der zurückgesetzte Bereich schafft Platz für eine überdachte Terrasse, die sich nahtlos an den Wohnraum anschließt. Im Inneren öffnet sich der Bungalow zu einer weitgehend barrierfreien Wohnzone. Wo Türen nötig sind, wurden 95 cm breite Durchgänge realisiert. Bei der Inneneinrichtung standen funktionale Lösungen und pflegeleichte Oberflächen im Vordergrund. Herzstück des Hauses ist der offene Wohn-, Ess- und Kochbereich. Die große Glasfront wirkt wie ein Wintergarten und bietet den perfekten Blick auf Garten und Sonnenuntergang.

Der Fertighaus Bungalow ist mit der Gebäudehülle ÖvoNatur Therm von WeberHaus ausgestattet, die überwiegend aus dem nachwachsendem Material Holz besteht und dank Holzfaserdämmung im Winter das Haus wohlig warm und im Sommer angenehm kühl hält.

Die Wärmeversorgung übernimmt eine energieeffiziente Luft-Wasser-Wärmepumpe, die durch einen Kaminofen ideal ergänzt wird. Während die Fußbodenheizung für behagliche Strahlungswärme sorgt, liefert der Kamin schnelle Wärme. Eine zentrale Lüftungsanlage gewährleistet kontinuierlich frische Luft – ganz ohne Wärmeverluste. Auf dem Dach liefert eine Photovoltaikanlage mit 20 Modulen saubere Energie. Die Besitzer haben die Anlage gleich doppelt so groß geplant und speichern Überschüsse in einer Batterie. So sind sie rund acht Monate im Jahr energieautark und speisen etwa dreimal mehr Strom ins öffentliche Netz ein, als sie selbst verbrauchen.

Das könnte Sie auch interessieren

Details

Aktualisiert am September 17, 2025 um 4:15 pm
  • Haus-ID: HD46573
  • Wohnfläche: 111,08 m²
  • Zimmer: 3
  • Haustyp: Bungalow
  • Dachform: Walmdach
  • Bauweise: Fertighaus
  • Etagen: 1
  • Ausbaustufen: Ausbauhaus, Schlüsselfertig
  • Form: L-Form
  • Preis: k.A.
  • Fläche: 100 bis 150 m²
  • Frontmaße (m): 12,98
  • Seitenmaße (m): 11,89
  • Fassade: Putz
  • Verwendung: Einfamilienhaus
  • Stil: Klassisch

Grundrisse

Kontakt zum Anbieter

Alle Häuser sehen

Anbieter dieses Hauses kontaktieren

Ähnliche Häuser

Vergleiche Einträge

Vergleichen
WeberHaus
  • WeberHaus