DANWOOD Bungalow Perfect 86

  • Schlüsselfertig 223.100€
Hausentwurf
Hausentwurf
DANWOOD Bungalow Perfect 86
  • Schlüsselfertig 223.100€

Beschreibung

Ein Zuhause, das nicht gebaut, sondern gelebt wird

Es gibt Häuser, die man betritt — und solche, die einen empfangen. Dieser Bungalow gehört zur zweiten Art. Er ist weniger ein Bauwerk als ein stiller Begleiter, der sich an den Rhythmus seines Menschen anschmiegt. Drei Zimmer, eine offene Küche, Bad, Technikraum, Diele: nüchtern betrachtet eine Aufzählung. Doch in Wahrheit sind es Räume, die sich nicht über ihre Funktion definieren, sondern über die Persönlichkeit, die sie füllt.

Die Garderobe wird zum ersten Dialog zwischen Alltag und Ankommen. Die Diele ist kein Durchgang, sondern ein Moment des Übergangs — vom Außen ins Eigene. Die offene Küche ist nicht nur ein Ort des Kochens, sondern der Begegnung, der Aromen, der Gespräche, die bis in die Nacht tragen. Jeder Raum ist ein Echo der Person, die hier lebt: ihrer Gewohnheiten, ihrer Sehnsüchte, ihrer Art, die Welt zu betrachten.

Das Satteldach mit seiner klaren 22° Neigung wirkt wie ein schützender Gedanke, der sich über das Leben legt. Nicht dominant, nicht laut, sondern bewusst gewählt — ein Zeichen von Haltung. Es steht für Stabilität, für Ruhe, für die Entscheidung, sich nicht zu überhöhen, sondern geerdet zu bleiben.

Dieser Bungalow ist kein Projekt. Er ist ein Ausdruck. Ein Ort, an dem man nicht nur wohnt, sondern sich entfaltet. Ein Zuhause, das nicht protzt, sondern versteht. Ein Raum, der nicht vorgibt, wer man sein soll, sondern stärkt, wer man ist.

Das könnte Sie auch interessieren

Details

Aktualisiert am Januar 19, 2026 um 8:13 am
  • Haus-ID: HD46948
  • Preis: Schlüsselfertig 223.100€
  • Wohnfläche: 86,48 m²
  • Zimmer: 2
  • Haustyp: Bungalow
  • Dachform: Satteldach
  • Bauweise: Fertighaus
  • Etagen: 1
  • Ausbaustufen: Schlüsselfertig
  • Form: Rechteckig
  • Preis: bis 250.000 €
  • Fläche: bis 100 m²
  • Frontmaße (m): 11,60
  • Seitenmaße (m): 8,96
  • Dachneigung: 22
  • Fassade: Putz
  • Verwendung: Einfamilienhaus
  • Stil: Modern

Zusätzliche Angaben

  • Technik: Technik, die das Wohnen leichter macht Das Technikpaket Today 3AL kombiniert moderne Wärmepumpentechnik mit einem Warmwasserspeicher und einer intelligenten Lüftungsanlage. Das Ergebnis: ein Zuhause, das sich automatisch um ein angenehmes Raumklima kümmert – warm im Winter, frisch im Sommer, effizient das ganze Jahr. Die Fußbodenheizung sorgt für behagliche Wärme in jedem Raum, während die zentrale Lüftung mit Wärmerückgewinnung Energie spart und gleichzeitig für konstant frische Luft sorgt. Ein Technikpaket, das Komfort, Effizienz und Zukunftssicherheit perfekt verbindet.
  • Sanitärausstattung: 8Dusche – sicher, bequem und ideal für Kinder wie Erwachsene • Wandhängendes WC – leicht zu reinigen, hygienisch, familienfreundlich • Waschtisch • Hochwertige Armaturen – langlebig, leicht zu bedienen, temperaturstabil • Optional je nach Modell: • Badewanne – perfekt für Kinder, Entspannung oder gemeinsame Abendrituale • Doppelwaschtisch – kein Gedränge am Morgen • Unterputz Armaturen – sicher, elegant, leicht zu reinigen Alles ist darauf ausgelegt, den Alltag zu erleichtern und gleichzeitig lange schön zu bleiben.
  • Malerarbeiten: Wände & Decken – fertig für den Einzug. Alle Innenwände und Decken werden im Standard schlüsselfertig ausgeführt. Das bedeutet: • Glatte, gespachtelte und geschliffene Oberflächen • Weiße Endbeschichtung in hochwertiger Dispersionsfarbe • Saubere, gleichmäßige Optik in allen Wohnräumen. DANWOOD liefert bereits die fertige Oberfläche • Keine sichtbaren Fugen oder Übergänge dank industrieller Präzision Damit ist das Haus sofort bewohnbar, ohne dass zusätzliche Malerarbeiten notwendig sind.
  • Fußböden: Wohn und Schlafräume – warm, robust, einladend! Alle Wohn und Schlafräume werden mit hochwertigen, pflegeleichten Bodenbelägen ausgestattet, die Wärme, Komfort und Alltagstauglichkeit verbinden. Standardausführung (modellabhängig): • Hochwertiger Design Vinylboden in Holzoptik • Strapazierfähig, leise, fußwarm • Ideal für Familien, Haustiere und tägliche Nutzung • Harmonische Farbwelten (Eiche hell, Eiche natur, Eiche grau – je nach Auswahl im Design Center Pinkafeld Optional: • Laminat in Premium‑Qualität • Echtholzparkett (Aufpreis) • Alternative Designlinien (Betonoptik, dunkle Holzoptik, warme Naturtöne)
  • Rollläden: Die Rollläden von DANWOOD sind die perfekte Ergänzung zur energieeffizienten DANWOOD Bauweise. Sie schützen im Sommer vor Hitze, halten im Winter die Wärme im Haus und sorgen jederzeit für Privatsphäre und Sicherheit. Mit elektrischer Bedienung oder smarter Steuerung lassen sie sich bequem und intuitiv nutzen – ein Komfortgewinn, den man jeden Tag spürt. Kurz gesagt Bei DANWOOD sind Rollläden optional, aber technisch perfekt integrierbar – elektrisch, langlebig und ideal für moderne Architektur.

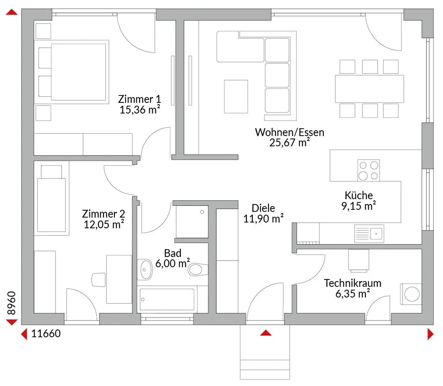
Grundrisse

image

Der Grundriss soll exakt zu Ihrem Lebensstil passen? Individualisieren Sie ihn nach Ihren Vorstellungen und lassen Sie sich von mir, als Ihre persönliche DANWOOD Bauberaterin, ein kostenfreies, maßgeschneidertes Raumkonzept entwickeln, das perfekt auf Ihre Bedürfnisse abgestimmt ist.

Kontakt zum Anbieter

Alle Häuser sehen

Anbieter dieses Hauses kontaktieren

Ähnliche Häuser

Vergleiche Einträge

Vergleichen
Tatjana Wyss
  • Tatjana Wyss