Minihaus Bungalow OPTION mit partiellem Satteldach

  • Preis ab 199.000€
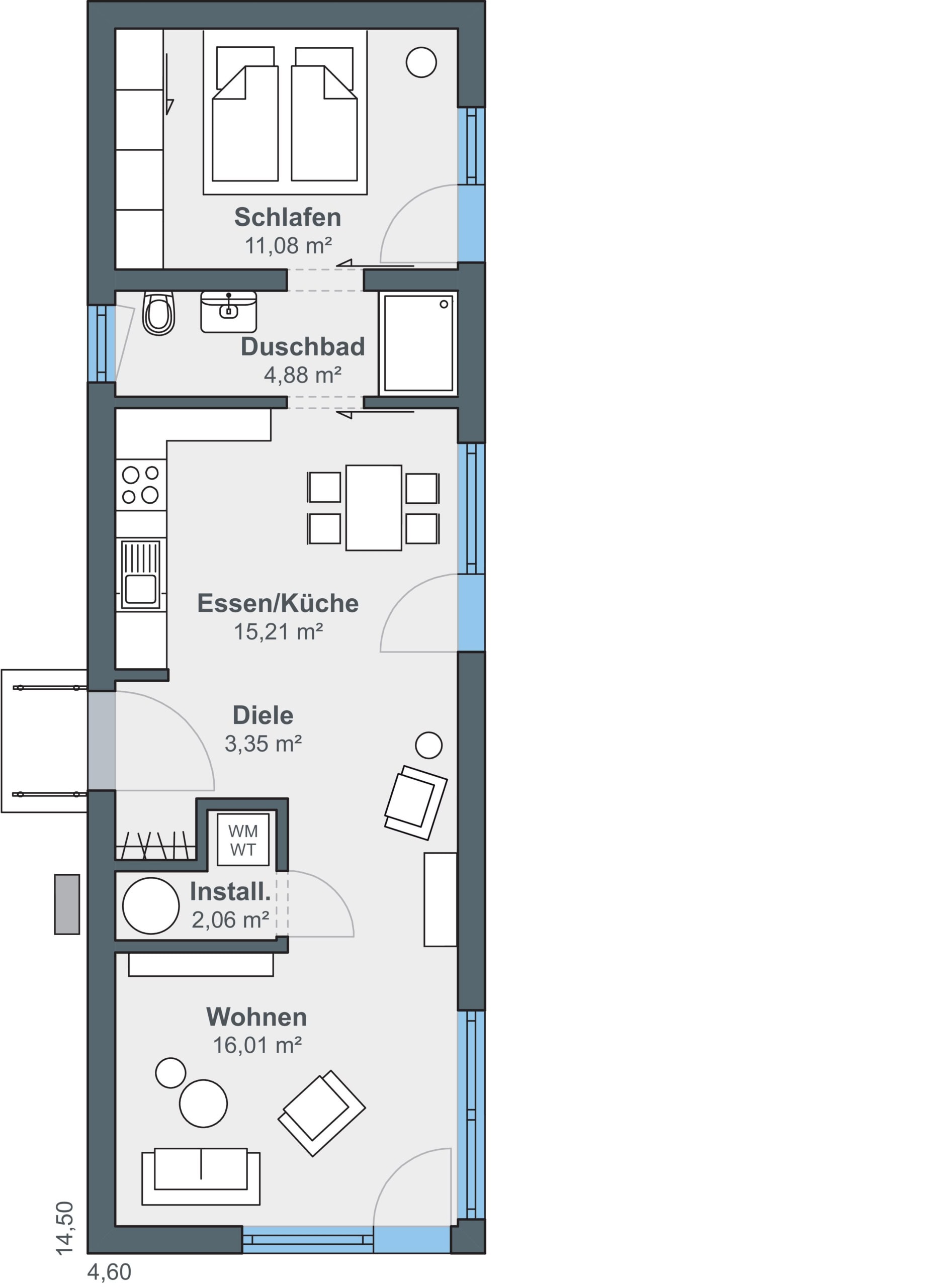
NEU Grundriss Musterhaus
NEU Grundriss Musterhaus
Minihaus Bungalow OPTION mit partiellem Satteldach
  • Preis ab 199.000€

Beschreibung

Der Bungalow OPTION ist ein modernes Minihaus des Fertighaus Anbieters WeberHaus und überzeugt durch einen kompakt geplanten mit rund 55 Quadratmeter Wohnfläche, der sich ideal für Singles oder Paare eignet.

Bei der Dachform kann zwischen einem partiellen Satteldach oder einem Flachdach gewählt werden. Besonders das stilvolle Satteldach mit sechs Dachfenstern sorgt für viel Licht und ein offenes Raumgefühl bis zum First. Dadurch wirkt das Haus größer und heller.

Der schmale Bungalow Grundriss ist klar strukturiert. Ein offen gestalteter Wohn-, Ess- und Kochbereich bildet das Zentrum des Hauses, während die Privaträume klar abgetrennt sind. Kurze Wege sorgen dafür, dass die Wohnfläche optimal genutzt wird.

Zu den Besonderheiten des Fertighaus Bungalows zählen die barrierearme Planung, die moderne Quaderform sowie die elegante Putzfassade in zeitlosen Farben. Innen überzeugt das Haus durch eine stilvolle Gestaltung mit hochwertigen Materialien und harmonischen Farbtönen.

Dieser Bungalow verbindet Funktionalität, modernes Design und Wohnkomfort auf kleinem Raum und ist damit eine ideale Lösung für alle, die kompakt und stilvoll wohnen möchten.

Details

  • Haus-ID: HD49311
  • Preis: Preis ab 199.000€
  • Wohnfläche: 52,74 m²
  • Zimmer: 2
  • Haustyp: Bungalow
  • Dachform: Flachdach
  • Bauweise: Fertighaus
  • Etagen: 1
  • Ausbaustufen: Ausbauhaus, Schlüsselfertig
  • Form: Schmal
  • Preis: bis 200.000 €
  • Fläche: bis 100 m²
  • Frontmaße (m): 4,60
  • Seitenmaße (m): 14,50
  • Fassade: Putz
  • Verwendung: Einfamilienhaus
  • Stil: Modern

Grundrisse

Kontakt zum Anbieter

Alle Häuser sehen

Anbieter dieses Hauses kontaktieren

Ähnliche Häuser

Vergleiche Einträge

Vergleichen
WeberHaus
  • WeberHaus