Modernes Haus mit Satteldach und grauer Holzfassade

  • Preis auf Anfrage
Kundenhaus
Kundenhaus
Modernes Haus mit Satteldach und grauer Holzfassade
  • Preis auf Anfrage

Beschreibung

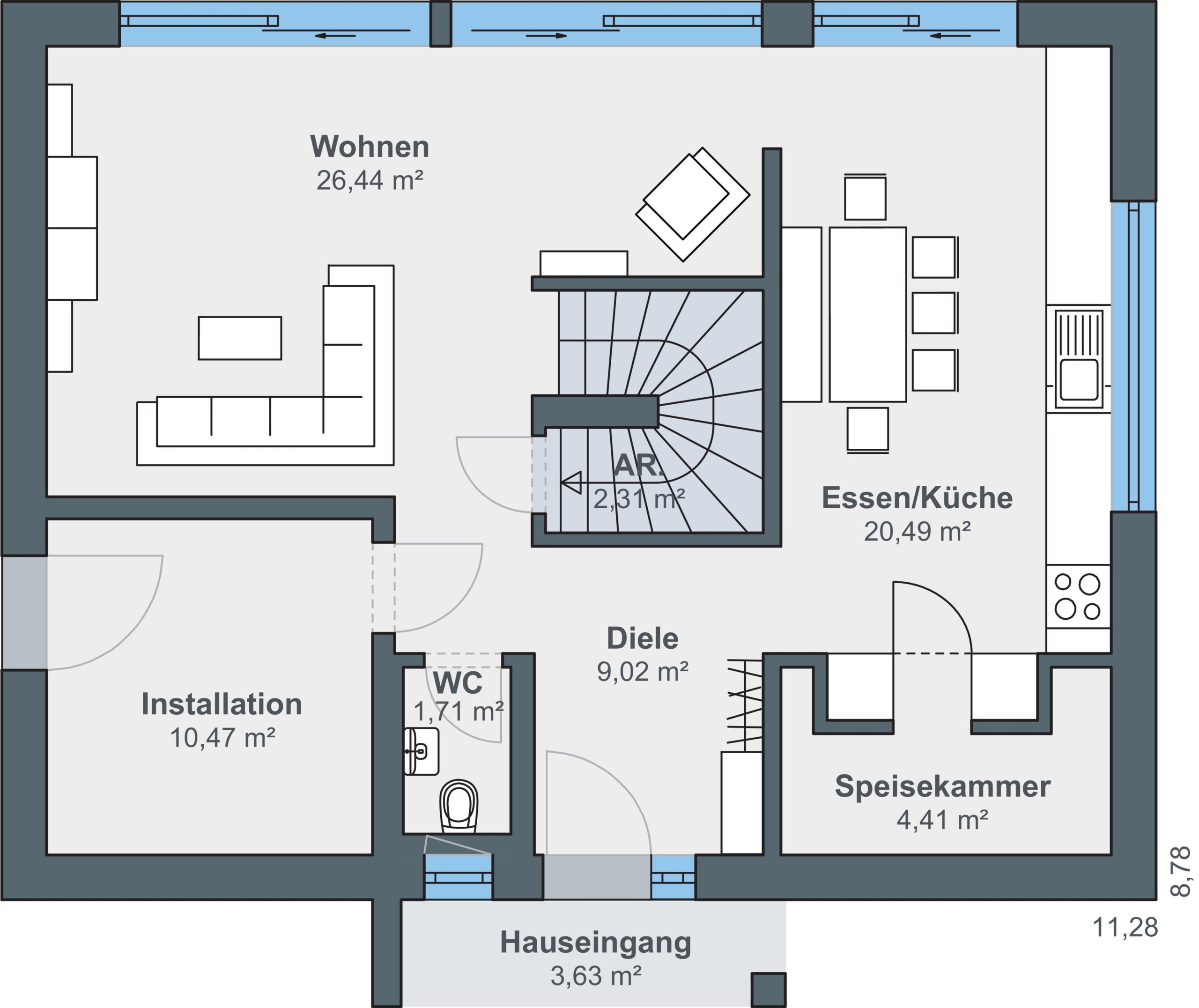
Das individuell geplante 1,5‑geschossige Einfamilienhaus der WeberHaus Baureihe generation5.5 — 150 besticht durch seine geradlinige und einen modernen, minimalistischen Ausdruck. Das Satteldach ohne Dachüberstand betont die klare Formensprache, während unterschiedliche Fensterformate und ein markanter Zwerchgiebel mit Flachdach für gestalterische Spannung sorgen. Die dunkelgraue Holzverschalung ist ein besonderes Merkmal; sie wurde lasiert statt lackiert, um die natürliche Struktur des Holzes zu erhalten und dem Gebäude eine warme, authentische Ausstrahlung zu geben. Mit einer Wohnfläche von 143,81 m² bietet das Fertighaus von WeberHaus Raum für drei Bewohner und verbindet funktionale Grundrisslösungen mit gestalterischer Raffinesse. Im Erdgeschoss befindet sich eine separate Küche mit integriertem Essbereich, die als eigenständiger, funktionaler Bereich konzipiert ist und dennoch kurze Wege zum Wohnbereich ermöglicht. Die Treppe, die vom Wohnzimmer ins Obergeschoss führt, schafft eine direkte, fließende Verbindung zwischen den Ebenen und macht das Wohnzimmer zum zentralen Verteilerraum des Hauses. Die offene Galerie im oberen Bereich wird als Studio und offener Ankleidebereich genutzt; diese räumliche Staffelung schafft flexible Nutzungszonen, die sich leicht an wechselnde Lebenssituationen anpassen lassen, sei es als Arbeitsbereich, Hobbyraum oder Rückzugsort. Ein großes Kinderzimmer im Obergeschoss ist so geplant, dass es sich bei Bedarf in zwei separate Kinderzimmer unterteilen lässt, wodurch das Haus auch für wachsende Familien oder wechselnde Wohnkonstellationen langfristig attraktiv bleibt. Die Raumaufteilung mit separater Küche, offener Galerie und teilbarem Kinderzimmer bietet sowohl Alltagstauglichkeit als auch Flexibilität für individuelle Nutzungswünsche. Dieses Einfamilienhaus vom Fertighaus Anbieter WeberHaus richtet sich an Menschen, die eine moderne, zurückhaltend minimalistische Architektur schätzen, zugleich Wert auf natürliche Materialien legen und ein durchdachtes, anpassungsfähiges Wohnkonzept suchen.

Das könnte Sie auch interessieren

Details

Aktualisiert am Januar 8, 2026 um 11:43 am
  • Haus-ID: HD47664
  • Wohnfläche: 143,81 m²
  • Zimmer: 3
  • Haustyp: Satteldachhaus
  • Dachform: Satteldach
  • Bauweise: Fertighaus
  • Etagen: 1,5
  • Ausbaustufen: Ausbauhaus, Schlüsselfertig
  • Form: Rechteckig
  • Preis: k.A.
  • Fläche: 100 bis 150 m²
  • Frontmaße (m): 11,28
  • Seitenmaße (m): 8,78
  • Fassade: Holz
  • Verwendung: Einfamilienhaus
  • Stil: Modern, Skandinavisch

Grundrisse

Kontakt zum Anbieter

Alle Häuser sehen

Anbieter dieses Hauses kontaktieren

Ähnliche Häuser

Vergleiche Einträge

Vergleichen
WeberHaus
  • WeberHaus