Einfamilienhaus der Baureihe generation5.5 — 300

  • Preis auf Anfrage
Kundenhaus
Kundenhaus
Einfamilienhaus der Baureihe generation5.5 — 300
  • Preis auf Anfrage

Beschreibung

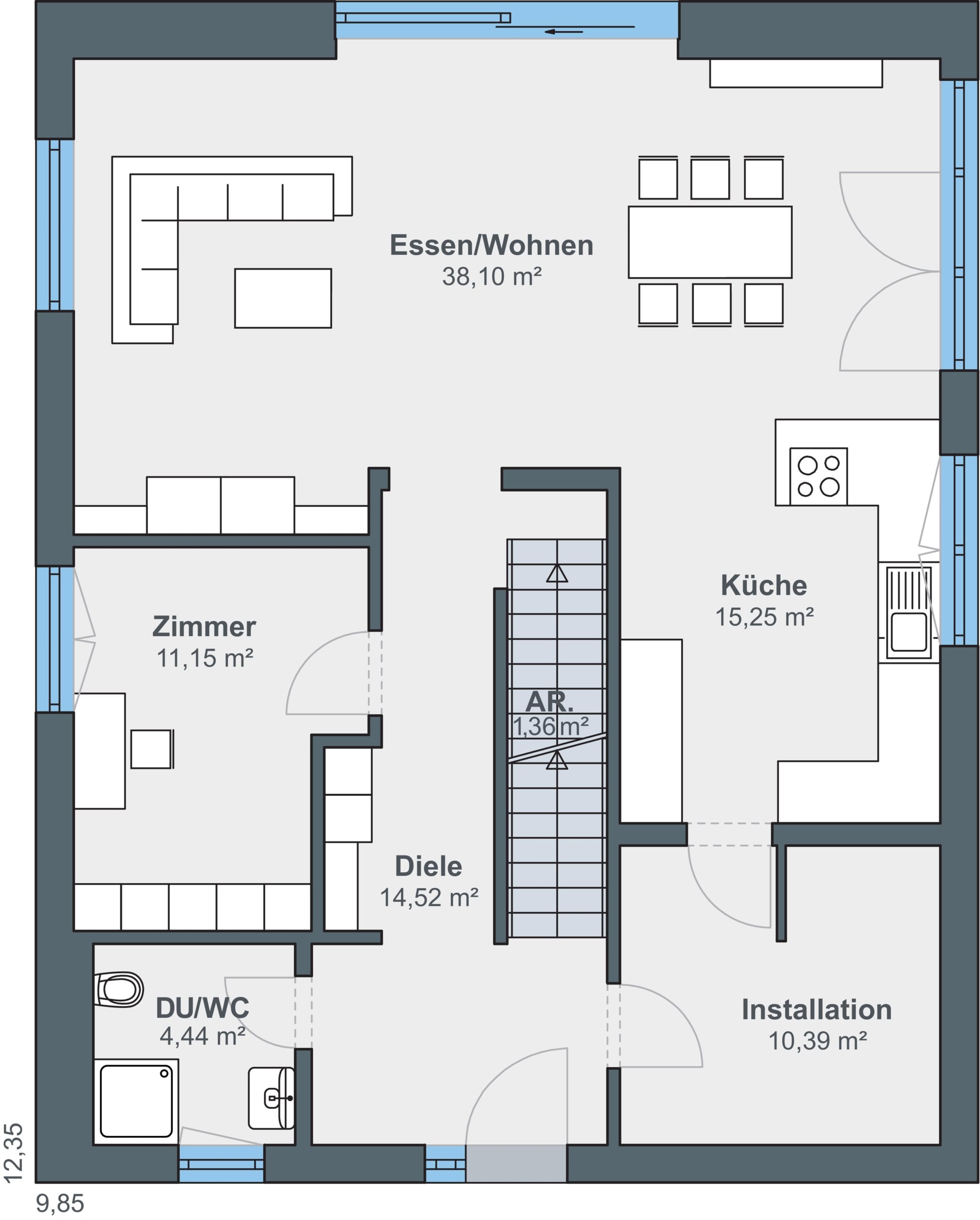
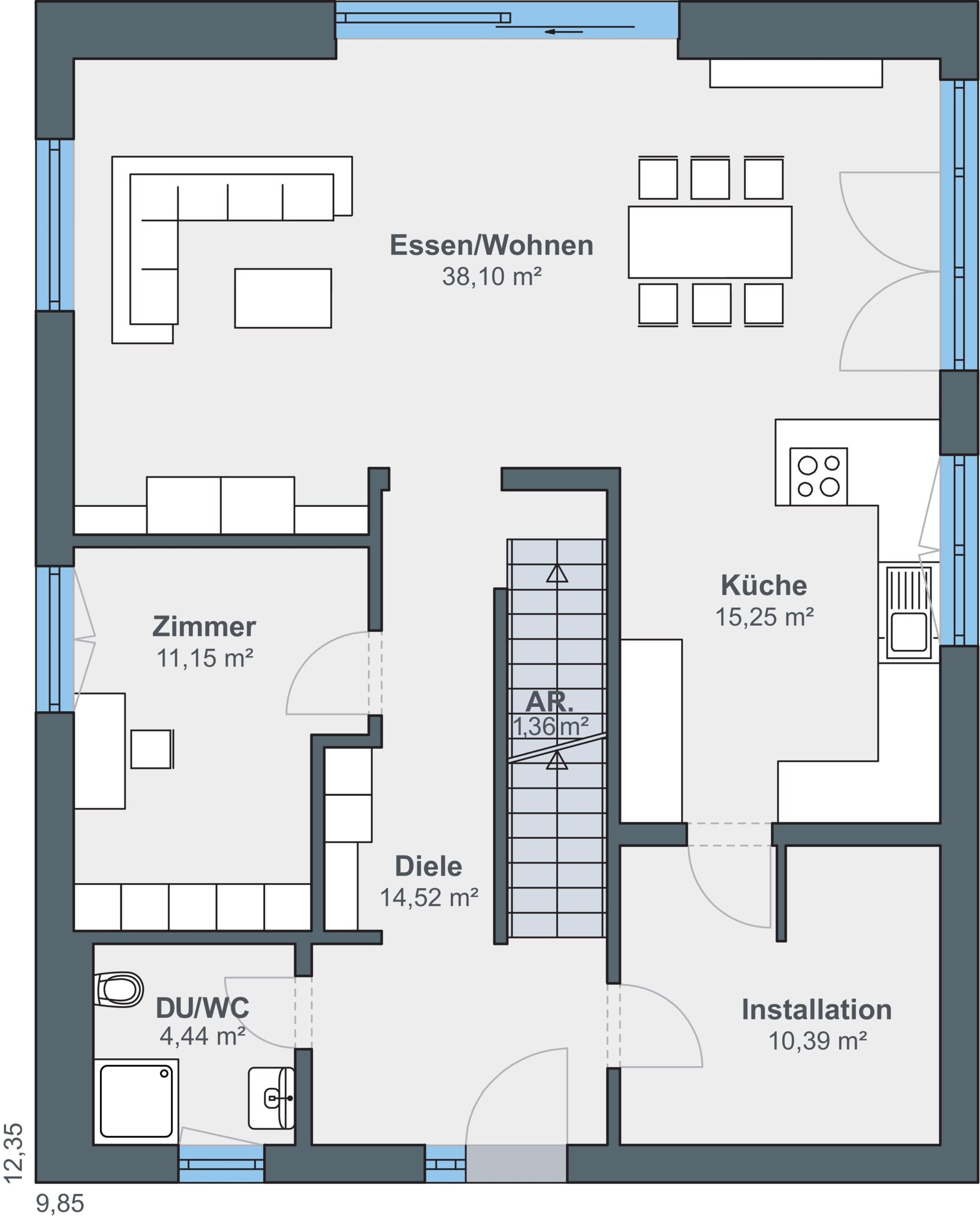
Dieses moderne Einfamilienhaus mit Satteldach ist für eine fünfköpfige Familie geplant. Das Fertighaus basiert auf der WeberHaus Baureihe generation5.5 und verfügt über rund 180 Quadratmeter Wohnfläche. Die Fassade ist schlicht und weiß verputzt. Graue Fensterrahmen und passende Dachziegel runden das Erscheinungsbild ab und lassen das Haus zeitlos und modern wirken. Die Gebäudehülle ÖvoNatur Therm besteht aus umwelt- und gesundheitsverträglichen Materialien und ist bei allen Häusern von WeberHaus Standard. Das sorgt für ein besseres Raumklima und gute Dämmwerte. Auf dem Dach ist eine Photovoltaik-Anlage montiert und ein Batteriespeicher ergänzt die Anlage. Insgesamt verfügt das Haus über sechs Zimmer. Im Erdgeschoss liegt ein großes Wohn‑Esszimmer mit offen gestalteter Küche und direktem Zugang zum Garten und Terrasse. Die Räume sind klar gegliedert und bieten flexible Nutzungsmöglichkeiten. Eine gerade Treppe führt ins Obergeschoss. Dort befinden sich drei Kinderzimmer und ein gemeinsames Bad. Außerdem gibt es einen großzügigen Elternbereich mit Schlafzimmer, Ankleide und einem großen Badezimmer mit  Sauna. Die Aufteilung bietet viel Privatsphäre und Alltagskomfort. Das Haus verbindet klassische Ästhetik mit moderner Technik und richtet sich an Familien, die Energieeffizienz wünschen.

Das könnte Sie auch interessieren

Details

Aktualisiert am November 6, 2025 um 10:58 am
  • Haus-ID: HD46772
  • Wohnfläche: 189,47 m²
  • Zimmer: 6
  • Haustyp: Satteldachhaus
  • Dachform: Satteldach
  • Bauweise: Fertighaus
  • Etagen: 1,5
  • Ausbaustufen: Ausbauhaus, Schlüsselfertig
  • Form: Rechteckig
  • Preis: k.A.
  • Fläche: 150 bis 200 m²
  • Frontmaße (m): 9,85
  • Seitenmaße (m): 12,35
  • Fassade: Putz
  • Verwendung: Einfamilienhaus
  • Stil: Modern

Grundrisse

Kontakt zum Anbieter

Alle Häuser sehen

Anbieter dieses Hauses kontaktieren

Ähnliche Häuser

Vergleiche Einträge

Vergleichen
WeberHaus
  • WeberHaus