Einfamilienhaus Now 129 mit Satteldach

  • Preis ab 323.000€
Hausentwurf
Hausentwurf
Einfamilienhaus Now 129 mit Satteldach
  • Preis ab 323.000€

Beschreibung

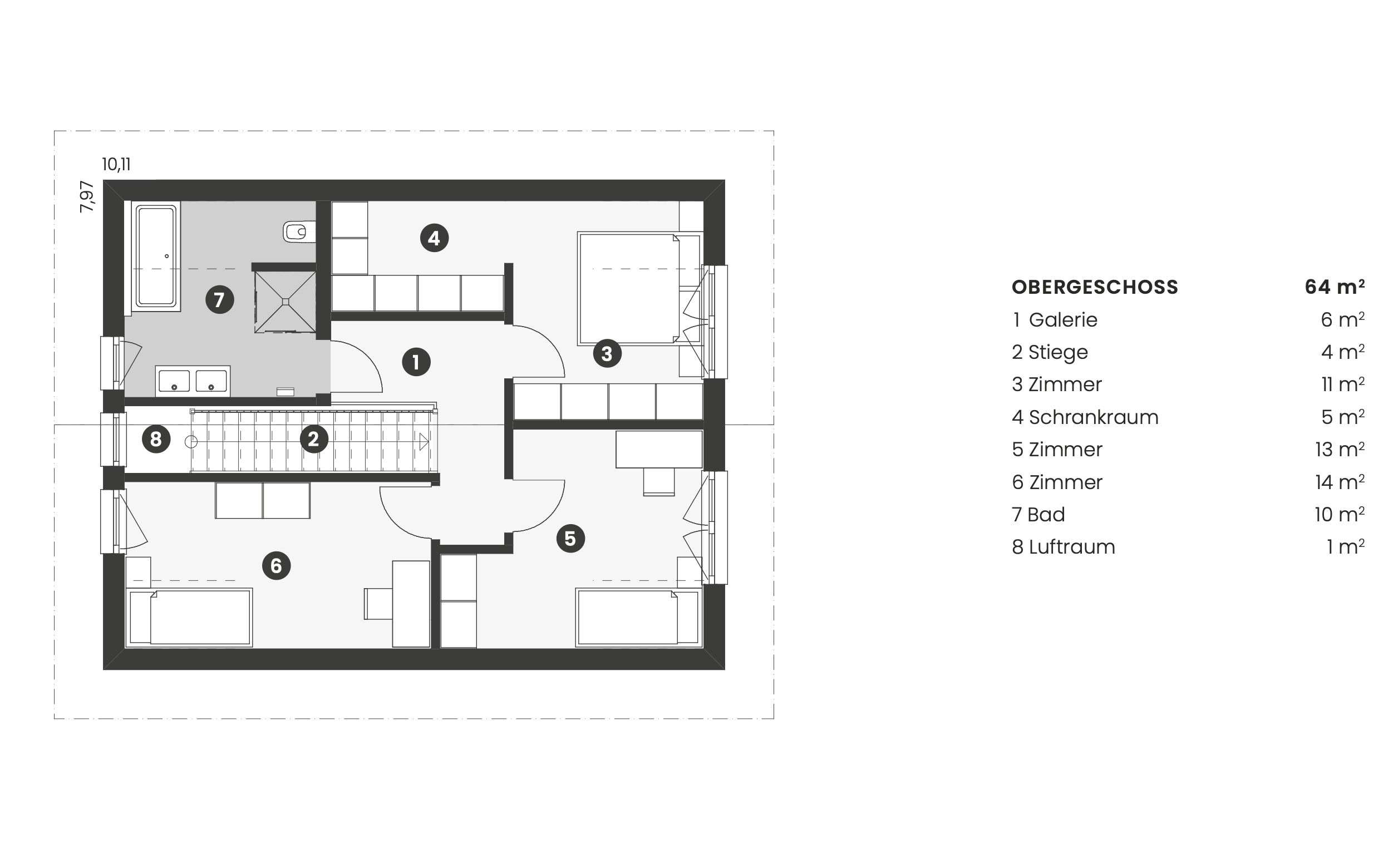
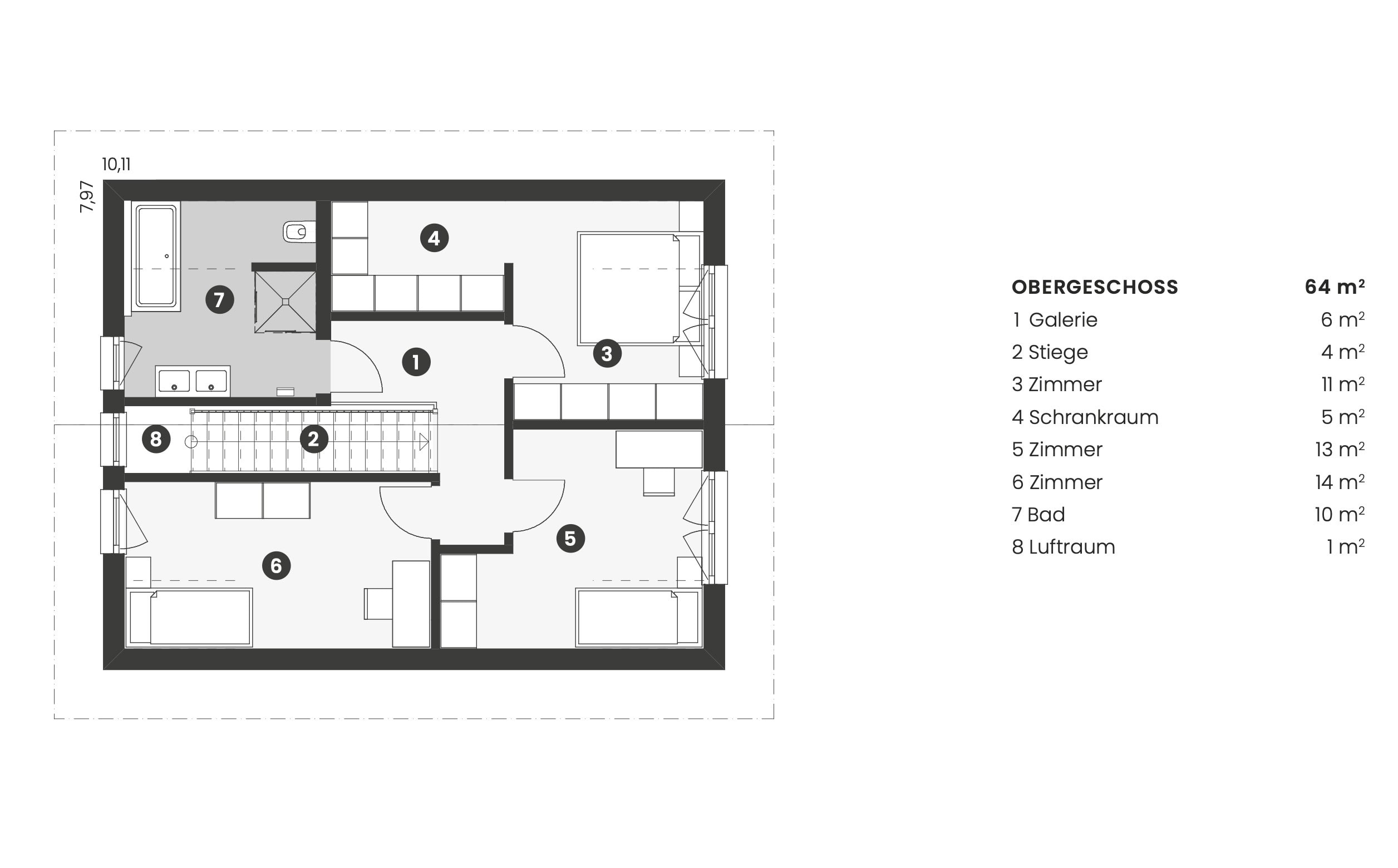
Das Einfamilienhaus Now 129 vom Hausanbieter ELK Haus ist ein modernes Fertighaus mit klar gestalteten Grundrissen und einer Netto-Raumfläche von etwa 129,46 Quadratmetern. Es besteht aus zwei Geschossen, wobei das Erdgeschoss rund 66,09 m² und das Obergeschoss etwa 63,37 m² umfasst. Insgesamt gibt es im Haus vier Zimmer, die sich gut als Wohn-, Schlaf- oder Kinderzimmer nutzen lassen. Die Zahl der Zimmer bietet Familien ausreichend Raum für gemeinsames Wohnen und individuelle Bereiche.

Der des Hauses ist so geplant, dass der Wohn- und Essbereich offen und großzügig wirkt. Der Eingangsbereich geht direkt in die Küche über, was das tägliche Verstauen von Einkäufen erleichtert und alltägliche Abläufe vereinfacht. Das Obergeschoss wird über eine gerade Treppe erschlossen. Hier befinden sich die privaten Räume mit ausreichend Platz für Schlaf- und Kinderzimmer sowie ein gemeinsames Bad.

Bei der Dachform kann man zwischen verschiedenen Varianten wählen. Für das Einfamilienhaus Now 129 sind Walmdach, Satteldach oder Flachdach möglich, so dass das äußere Aussehen des Hauses je nach persönlichen Vorlieben und örtlichen Vorgaben angepasst werden kann. Diese Flexibilität bei der Dachform gehört zu den Besonderheiten des Hauses und macht es anpassbar für unterschiedliche Bauplatzsituationen.

Eine weitere Besonderheit vom ELK Haus Now 129 ist die familienfreundliche Planung. Die durchdachten Grundrisse sorgen für offene und helle Wohnbereiche, die sich gut in den Alltag integrieren lassen. Die Anordnung der Räume ist so gewählt, dass sowohl gemeinsames Wohnen als auch Rückzug möglich ist. Außerdem bietet das Haus ausreichend Stauraum und Spielraum für verschiedenste Nutzungsideen.

Das Now 129 von ELK Haus ist damit ein Einfamilienhaus mit einer ausgewogenen Mischung aus funktionaler Raumaufteilung, flexiblen Gestaltungsoptionen und modernen Gestaltungselementen. Es erfüllt viele Anforderungen, die Bauherren an ein komfortables Familienhaus stellen und bietet mit rund 129 m² Wohnfläche und vier Zimmern ausreichend Platz für die ganze Familie.

Das könnte Sie auch interessieren

Details

Aktualisiert am Februar 17, 2026 um 11:25 am
  • Haus-ID: HD47855
  • Preis: Preis ab 323.000€
  • Wohnfläche: 129,46 m²
  • Zimmer: 4
  • Haustyp: Satteldachhaus
  • Dachform: Satteldach
  • Bauweise: Fertighaus
  • Etagen: 1,5
  • Ausbaustufen: Ausbauhaus, Schlüsselfertig
  • Form: Rechteckig
  • Preis: über 300.000 €
  • Fläche: 100 bis 150 m²
  • Frontmaße (m): 7,97
  • Seitenmaße (m): 10,11
  • Fassade: Putz, Holz
  • Verwendung: Einfamilienhaus
  • Stil: Modern, Klassisch

Grundrisse

Kontakt zum Anbieter

Alle Häuser sehen

Anbieter dieses Hauses kontaktieren

Ähnliche Häuser

Vergleiche Einträge

Vergleichen
ELK Haus
  • ELK Haus