Modernes Doppelhaus Duo 117 mit Flachdach

  • Preis auf Anfrage
Hausentwurf
Hausentwurf
Modernes Doppelhaus Duo 117 mit Flachdach
  • Preis auf Anfrage

Beschreibung

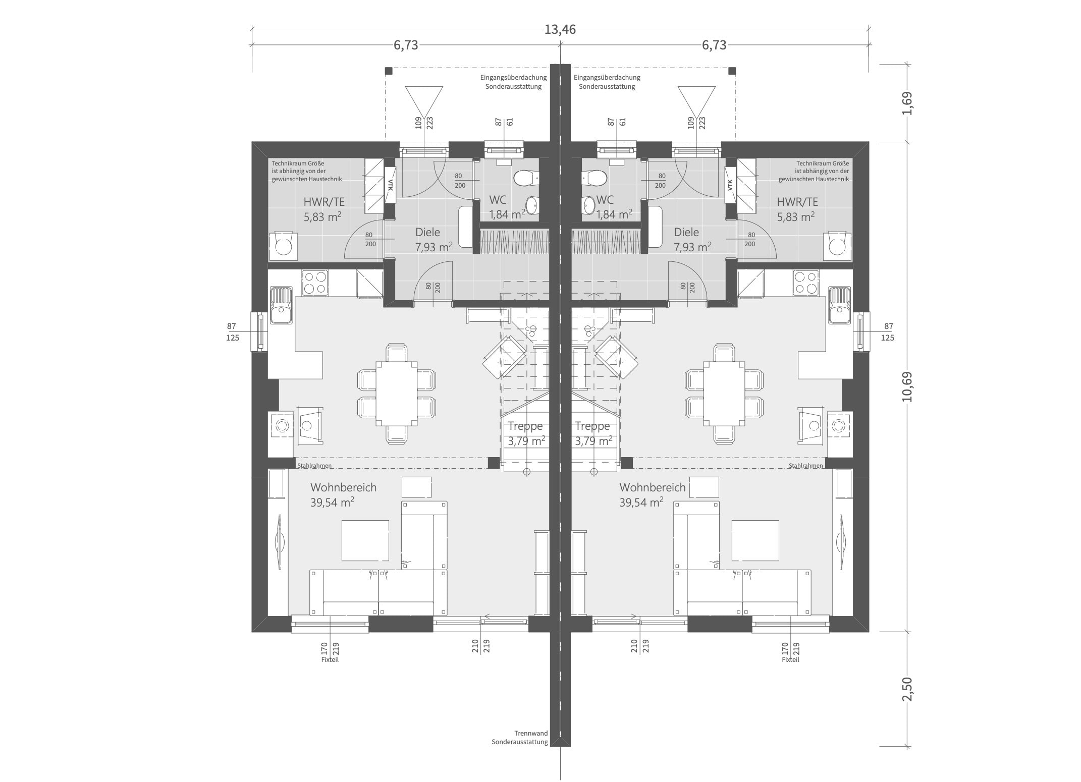
Das Mehrfamilienhaus Duo 117 von ELK Haus ist ein modernes Doppelhaus mit Flachdach und gehört zur Duo-Collection, die flexible Wohnlösungen wie Doppelhäuser oder Zweifamilienhäuser bietet. Es eignet sich besonders, wenn zwei Haushalte Seite an Seite wohnen wollen und trotzdem ihre eigenen vier Wände haben.

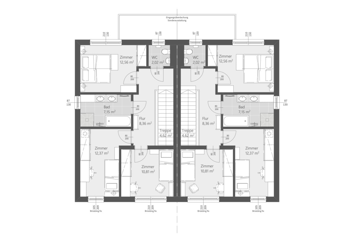
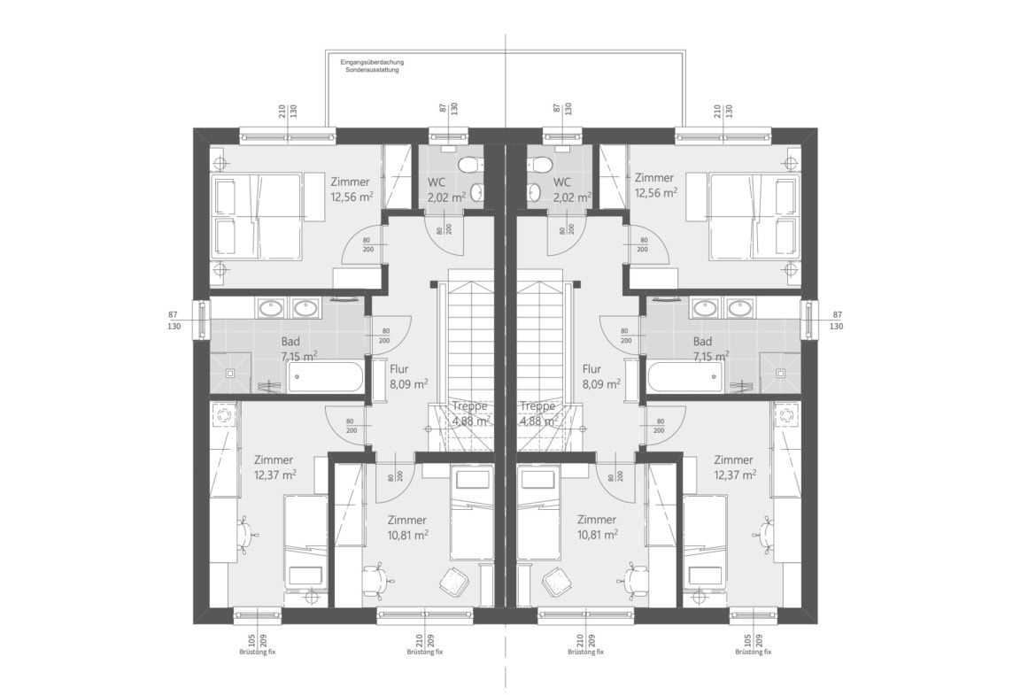
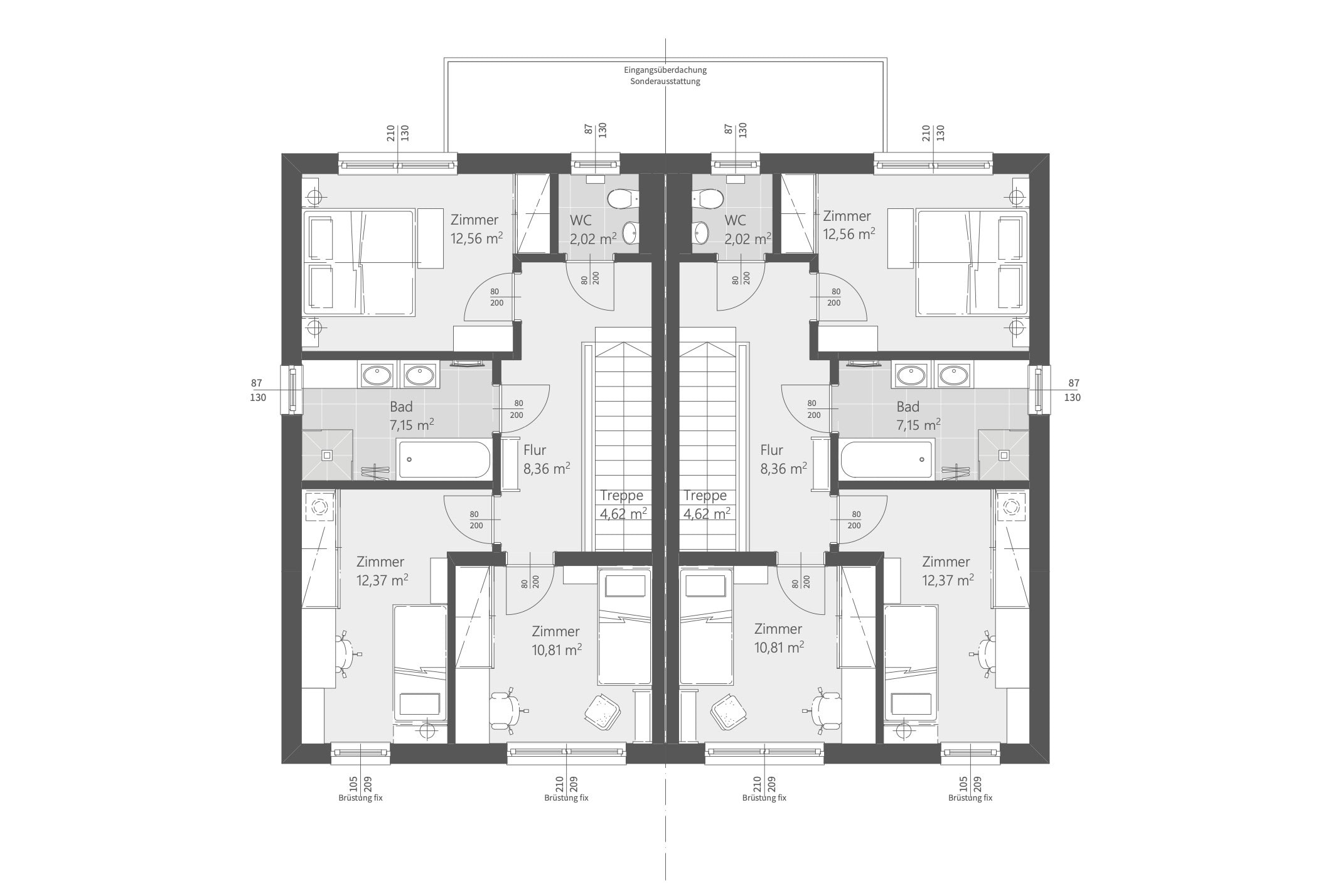
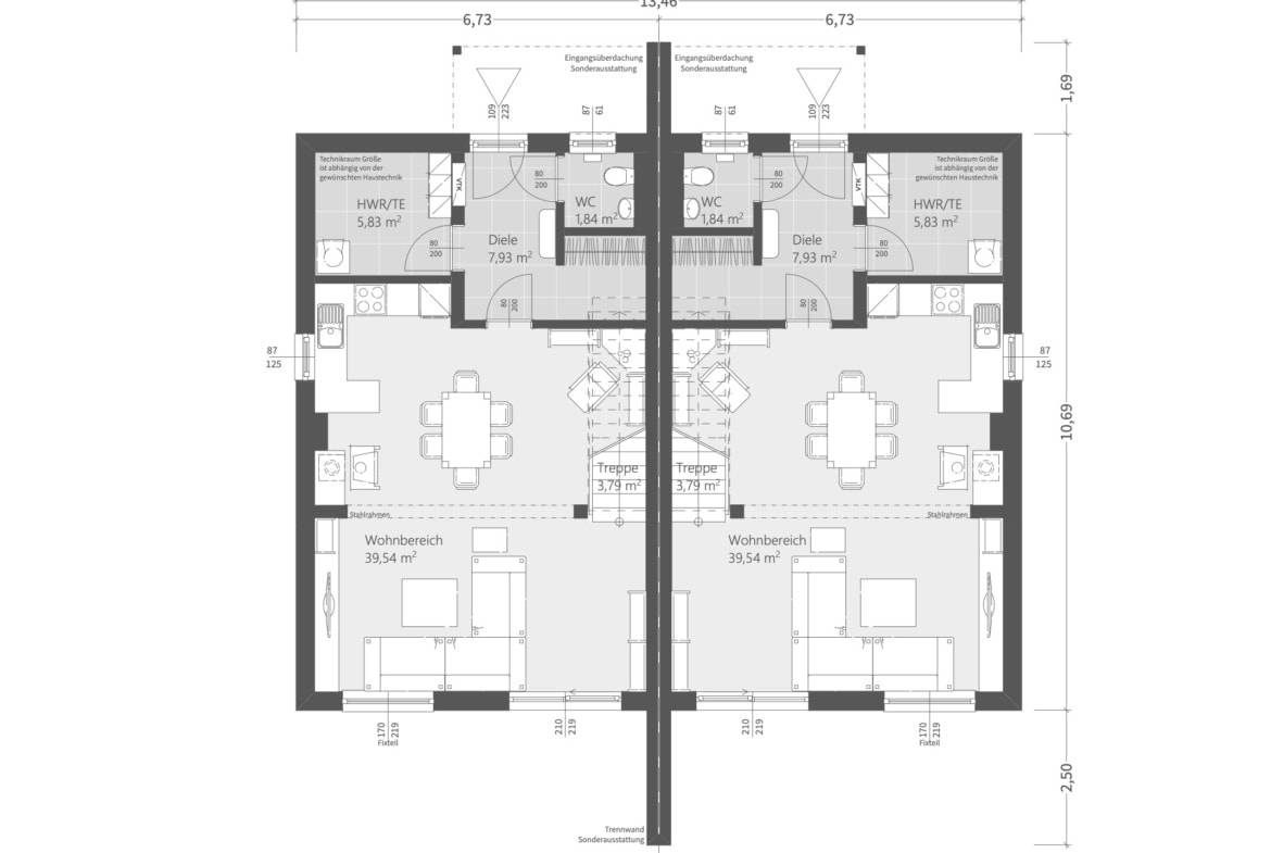
Das Duo 117 hat eine Netto-Raumfläche von ca. 117 m², verteilt auf zwei Etagen. Im Erdgeschoss gibt es einen großzügigen Wohn-Ess-Kochbereich mit über 40 m², der offen gestaltet ist und Platz für gemeinsames Leben und Essen bietet. Über eine gerade Treppe gelangt man in das Obergeschoss, wo sich drei Zimmer befinden, darunter ein Schlafzimmer, ein Badezimmer sowie ein separates WC. Optional lässt sich bei einer dreigeschossigen Variante ein Studio mit eigenem Bad und großer Dachterrasse ergänzen. Insgesamt ist das Doppelhaus Duo 117 ein durchdachtes Mehrfamilienhaus von ELK Haus mit praktischem , moderner Dachform, ausreichend Zimmern und ca. 117 Quadratmeter Wohnfläche pro Doppelhaushälfte.

Die Duo-Collection macht es möglich, das Haus an verschiedene Lebenssituationen anzupassen. Für dieses Doppelhaus sind mehrere Grundriss Varianten möglich, sodass es flexibel an die eigenen Wünsche angepasst werden kann. Es kann mit 2 oder 3 Etagen geplant werden und bietet dadurch unterschiedliche Nutzungsmöglichkeiten. Auch bei der Dachform gibt es verschiedene Optionen. Das ELK Haus kann als Doppelhaus mit Walmdach, Flachdach oder Pultdach umgesetzt werden, je nach Geschmack und architektonischem Stil.

Das könnte Sie auch interessieren

Details

Aktualisiert am März 3, 2026 um 3:34 pm
  • Haus-ID: HD47961
  • Wohnfläche: 116,82 m²
  • Zimmer: 4
  • Haustyp: Kubushaus
  • Dachform: Flachdach
  • Bauweise: Fertighaus
  • Etagen: 2
  • Ausbaustufen: Ausbauhaus, Schlüsselfertig
  • Form: Rechteckig
  • Preis: k.A.
  • Fläche: 100 bis 150 m²
  • Dachneigung: 3
  • Fassade: Putz
  • Verwendung: Doppelhaus
  • Stil: Bauhaus

Grundrisse

Kontakt zum Anbieter

Alle Häuser sehen

Anbieter dieses Hauses kontaktieren

Ähnliche Häuser

Vergleiche Einträge

Vergleichen
ELK Haus
  • ELK Haus